Appartement duflot

Ré-HabiterBoulogne-sur-mer (62)
Architecteur : Lille Architecteurs
Surface habitable : 183 m²

Notre mission

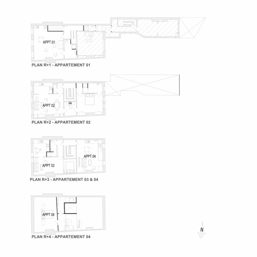
Le projet, situé au dessus d'une pharmacie rue du jeu de paume à Boulogne-sur-Mer, se répartie sur les quatres étages du bâtiment. L'objectif global du projet est de créer un environnement harmonieux, offrant aux résidents un lieu de vie convivial tout en préservant l'identité architecturale locale. En résumé, ce réaménagement vise à allier le fonctionnel et l'esthétique, contribuant ainsi à la revitalisation du quartier de Boulogne-sur-Mer.

Le projet en photos

Partager sur :

Vous avez un projet dans ce domaine ?

Construisons ensemble votre outil de travail afin qu’il corresponde à 100% à votre activité !